電話でお問い合わせ 0120-266-078
地域: 全国 北海道 北海道 函館市 ビレッジハウス金堀

ビレッジハウス金堀

北海道函館市金堀町3-3
お気に入りに追加

※家具は含まれません

初期費用算出シミュレーション
初期費用は1ヶ月目の日割り家賃(変動初期費用)と2ヶ月目の家賃(基本初期費用)、その他費用の合計となります。
基本初期費用
賃貸物件を契約する際に基本的に必要となる費用(月額家賃)項目です。
① 賃料
0
② 管理費
0
③ 追加オプション
0
0
0
0
0
0
0
0
④ その他賃料 (消費税率10%)
※金額が反映されている場合は家賃と共にビレッジハウスからご請求となります。
CATV利用料
0
水道料金
0
下水道使用料
0
光熱費
0
⑤ 駐車場料金 (消費税率10%)
※駐車場の空きがない場合もございます。ご了承ください。
0
⑥ 基本初期費用小計
0
変動初期費用
入居時期によって基本初期費用から日割り計算された費用項目です。
⑦ 入居予定日
⑧ 日割り賃料
0
⑨ 日割り管理費
0
⑩ その他賃料 (消費税率10%)
0
⑪ 日割り駐車場料金 (消費税率10%)
0
⑫ 変動初期費用小計
0
その他費用
敷金や保険などのその他の費用項目です。
⑬ 敷金
※条件によって敷金有無に関わるため該当する場合は以下ご選択ください。
0 カ月
0
⑭ 火災保険

保険コース選択の目安

10,000円コース~家財が少なめ

15,000円コース~標準的な量の家財

20,000円コース~家財が多め

※ご自身で別の保険に加入する場合は0円(自己加入)を選択してください。その場合契約締結前までに保険証券の写しの提出が必要です。

0
※保険料については2年間の金額となります。
⑮ 引越サポート
0
⑯ その他費用小計
0
⑰ 初期費用概算合計
0
2LDK
53.22m²〜
¥38,200〜
空室あり
3DK
53.22m²〜
¥-
空室なし
物件情報
周辺情報
所在地 北海道函館市金堀町3-3 構造•階建て 鉄筋コンクリート造 / 5 階建
棟/戸数 全2棟 / 総戸数80戸 エレベーター
築年月 1980/07 駐車場
火災保険 要加入 10,000 円~(2年) 駐車場賃料 ¥0
敷金/保証人 契約条件や審査の結果、敷金や連帯保証人を必要とする場合があります 短期解約違約金 1年未満の解約は3ヵ月分、2年未満の解約は2ヵ月分の解約違約金が発生します
法人契約 法人契約の場合、賃料等の契約条件が異なりますのでお問い合わせください
交通機関
  • 昭和橋 - 函館市電2系統 1.5~1.6 km, 徒歩 19.0~20.0 分
  • 堀川町 - 函館市電2系統 1.6~1.7 km, 徒歩 20.0~21.0 分
  • 千代台 - 函館市電2系統 1.6~1.7 km, 徒歩 21.0~22.0 分
  • 金堀町バス停留所 0.3~0.5 km, 徒歩 5.0~7.0 分

※地図上に表示させたい施設マークをクリック(チェック)して検索して頂けます。(複数選択できます)

お気に入りに追加
電話する 電話でお問い合わせ 0120-266-078
間取別 部屋情報
2LDK 専有面積: 53.22m²~
貸料: ¥38,200~ 残り3部屋
2LDK 53.22m²

1-201 南向き(1号棟 / 2階部分)

お気に入りに追加
貸料: ¥38,200

敷金: ¥0

礼金: ¥0

内見予約
部屋を問い合わせ
初期費用算出
VR内見
詳細図面
ダウンロード

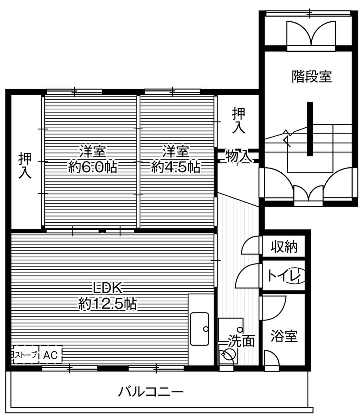
部屋の特徴
部屋の特徴 角部屋, 南向き, 南面バルコニー
放送通信 インターネット環境有り, 光ファイバー
バス・トイレ バス・トイレ別, 追い焚き機能, お湯張り機能
洗面所 室内洗濯機置き場, 独立洗面台
キッチン 瞬間湯沸器
部屋設備(冷暖房) ガスFF, ストーブ: 1台
その他の特徴 押入, バルコニー
その他の費用
ガス保証金 別途都市ガス保証金の預託が不要
退去時クリーニング費用 64,396円(税込)、物件・間取り毎に異なる(1,210円/m² x 専有面積)
特典1
フリーレント

賃料3ヵ月目フリーレント

特典2
キャッシュバック

最大3万円分の引越しサポート
(初回の請求から差し引きとなります)

お気に入りに追加
電話する 電話でお問い合わせ 0120-266-078
閉じる
2LDK 53.22m²

1-502 南向き(1号棟 / 5階部分)

お気に入りに追加
貸料: ¥38,300

敷金: ¥0

礼金: ¥0

内見予約
部屋を問い合わせ
初期費用算出
VR内見
詳細図面
ダウンロード

部屋の特徴
部屋の特徴 最上階の物件, 南向き, 南面バルコニー
放送通信 インターネット環境有り, 光ファイバー
バス・トイレ バス・トイレ別, 追い焚き機能, お湯張り機能
洗面所 室内洗濯機置き場, 独立洗面台
キッチン 瞬間湯沸器
部屋設備(冷暖房) エアコン1基, ガスFF, ストーブ: 1台
その他の特徴 押入, バルコニー
その他の費用
ガス保証金 別途都市ガス保証金の預託が不要
退去時クリーニング費用 64,396円(税込)、物件・間取り毎に異なる(1,210円/m² x 専有面積)
特典1
フリーレント

賃料3ヵ月目フリーレント

特典2
キャッシュバック

最大3万円分の引越しサポート
(初回の請求から差し引きとなります)

お気に入りに追加
電話する 電話でお問い合わせ 0120-266-078
閉じる
2LDK 53.22m²

1-408 南向き(1号棟 / 4階部分)

お気に入りに追加
貸料: ¥43,000

敷金: ¥0

礼金: ¥0

内見予約
部屋を問い合わせ
初期費用算出
VR内見
詳細図面
ダウンロード

部屋の特徴
部屋の特徴 角部屋, 南向き, 南面バルコニー
放送通信 インターネット環境有り, 光ファイバー
バス・トイレ バス・トイレ別, 追い焚き機能, お湯張り機能, 温水洗浄便座
洗面所 室内洗濯機置き場, 独立洗面台
キッチン 瞬間湯沸器, ガスコンロ
部屋設備(冷暖房) エアコン1基, ガスFF, ストーブ: 1台
その他の特徴 押入, バルコニー
その他の費用
ガス保証金 別途都市ガス保証金の預託が不要
退去時クリーニング費用 64,396円(税込)、物件・間取り毎に異なる(1,210円/m² x 専有面積)
特典1
フリーレント

賃料3ヵ月目フリーレント

特典2
キャッシュバック

最大3万円分の引越しサポート
(初回の請求から差し引きとなります)

お気に入りに追加
電話する 電話でお問い合わせ 0120-266-078
閉じる
3DK 専有面積: 53.22m²~
貸料: ¥ - 空室なし

※空室ができ次第、部屋詳細が表示されます。

電話する 電話でお問い合わせ 0120-266-078
会社情報
会社名 ビレッジハウス・マネジメント株式会社
所在地 東京都港区六本木6-10-1 六本木ヒルズ森タワー44階
免許番号 東京都知事(2)第100758号
所属団体 公益社団法人東京都宅地建物取引業協会 / 公益財団法人日本賃貸住宅管理協会
取引態様 貸主
近隣物件
函館市ビレッジハウス函館の建物外観
函館
北海道函館市日吉町4-1-1

1LDK / 34.34m² / ¥32,600 〜

2K / 34.34m² / (空室なし)

詳細
むつ
青森県むつ市松山町24-1

3DK / 53.96m² / (空室なし)

詳細
二海郡ビレッジハウス八雲の建物外観
八雲
北海道二海郡八雲町出雲町60-178

2LDK / 55.99m² / (空室なし)

3DK / 55.99m² / (空室なし)

詳細
室蘭市ビレッジハウス高平の建物外観
高平
北海道室蘭市高平町27-90

2K / 34.34m² / (空室なし)

詳細
室蘭市ビレッジハウス白鳥台の建物外観
白鳥台
北海道室蘭市白鳥台5-17-3

1LDK / 34.34m² / ¥32,300 〜

2K / 34.34m² / (空室なし)

詳細
VR内見
詳細図面

電話で内見を予約する

0120-266-078

ただ今、営業時間外のため、電話でのお問い合わせをお受けできません。下記フォームを
ご記入の上、お問い合わせください。

函館市ビレッジハウス金堀の建物外観
お気に入りに追加

ビレッジハウス金堀

北海道函館市金堀町3-3
駐車場空:
内見を希望する部屋を選択: 必須
内見を希望する部屋を選択 (必須)
  • 家賃:
    ¥38,200
    専有面積:
    53.22m²
    部屋:
    1-201
  • 家賃:
    ¥38,300
    専有面積:
    53.22m²
    部屋:
    1-502
  • 家賃:
    ¥43,000
    専有面積:
    53.22m²
    部屋:
    1-408
内見可能日: 即時

※内見時間は約30分となっています。
※お急ぎで内見ご希望の場合はお電話にてお問い合わせください。

内見の希望日時(第1希望) 必須

日付:
時間帯:

内見の希望日時(第2希望) 必須

日付:
時間帯:

内見の希望日時(第3希望)

日付:
時間帯:

お名前(漢字): 必須

お名前(カナ): 必須

電話: 必須

Eメール: 必須

メールアドレス(確認用): 必須

当日の来場方法: 必須

その他のご要望:

※仮予約を受付いたします。

電話する 電話でお問い合わせ 0120-266-078
エリアから探す