Gọi cho Chúng tôi 0120-266-078
Khu vực: Toàn Nhật Bản Hokkaido Hokkaido Sapporo-shi Village House Higashi Tsukisamu

Village House Higashi Tsukisamu

Hokkaido, Sapporo-shi, Toyohira-ku, Tsukisamuhigashi01Jo 13-4
Thêm vào mục yêu thích

*Không bao gồm đồ nội thất

Mô phỏng tính toán chi phí ban đầu
Chi phí ban đầu bao gồm tiền nhà của tháng bắt đầu hợp đồng tính theo ngày (chi phí ban đầu biến động) và tiền thuê nhà của tháng tiếp theo (chi phí ban đầu cơ bản), cùng với các chi phí khác.
Chi phí ban đầu cơ bản
Các khoản chi phí cơ bản (tiền thuê hàng tháng) cần thiết khi ký hợp đồng thuê nhà.
① Tiền thuê nhà
0 yên
② Phí quản lý
0 yên
③ Thiết bị tùy chọn
0 yên
0 yên
0 yên
0 yên
0 yên
0 yên
0 yên
0 yên
④ Các khoản phí khác (Thuế tiêu dùng: 10%)
*Các khoản phí khác (nếu có) sẽ được tính cùng với tiền thuê nhà bởi Village House.
Phí sử dụng truyền hình cáp (CATV)
0 yên
Tiền nước
0 yên
Phí sử dụng hệ thống thoát nước
0 yên
Chi phí điện, gas
0 yên
⑤ Chi phí bãi đỗ xe (Thuế tiêu dùng: 10%)
*Cũng có trường hợp không còn bãi đỗ xe, rất mong quý khách thông cảm.
chiếc
0 yên
⑥ Tổng chi phí ban đầu cơ bản
0 yên
Chi phí ban đầu biến động
Các khoản chi phí được tính theo ngày tùy thuộc vào thời điểm chuyển vào.
⑦ Ngày dự kiến chuyển vào
⑧ Tiền thuê theo ngày
0 yên
⑨ Phí quản lý theo ngày
0 yên
⑩ Các khoản phí khác theo ngày (Thuế tiêu dùng: 10%)
0 yên
⑪ Chi phí bãi đỗ xe theo ngày (Thuế tiêu dùng: 10%)
0 yên
⑫ Tổng chi phí ban đầu biến động
0 yên
Các chi phí khác
Các chi phí khác như tiền đặt cọc, bảo hiểm.
⑬ Tiền đặt cọc
*Tùy theo điều kiện đăng ký, hồ sơ đăng ký có thể phát sinh hoặc không phát sinh tiền đặt cọc, nếu quý khách thuộc các trường hợp dưới đây, quý khách vui lòng chọn từ danh sách.
0 tháng
0 yên
⑭ Bảo hiểm cháy nổ

Hướng dẫn lựa chọn gói bảo hiểm

Gói 10.000 yên – dành cho trường hợp ít đồ đạc

Gói 15.000 yên – dành cho trường hợp lượng đồ đạc bình thường

Gói 20.000 yên – dành cho trường hợp nhiều đồ đạc

※Nếu quý khách tự tham gia bảo hiểm khác, quý khách vui lòng chọn 0 yên (tự tham gia). Trong trường hợp đó, quý khách cần nộp bản sao giấy chứng nhận bảo hiểm trước khi ký kết hợp đồng.

0 yên
※Phí bảo hiểm trên là tổng số tiền cho 2 năm.
⑮ Hỗ trợ chuyển nhà
0 yên
⑯ Tổng các chi phí khác
0 yên
⑰ Tổng chi phí ban đầu ước tính
0 yên
2LDK
53.21m²
¥-
Không còn phòng nào trống
3DK
53.21m²
¥-
Không còn phòng nào trống
Thông tin căn hộ
Thông tin khu vực xung quanh
Địa chỉ Hokkaido, Sapporo-shi, Toyohira-ku, Tsukisamuhigashi01Jo 13-4 Cấu trúc / Số tầng Bê tông cốt thép / Nhà 5 tầng
Tòa nhà / số căn hộ Có 4 tòa nhà / Tổng cộng 160 phòng Thang máy Không
Năm xây dựng 11/1978 Bãi đỗ xe
Bảo hiểm cháy nổ Cần thiết tham gia từ 10,000 yên (2 năm) Phí bãi đỗ xe ¥5,500 ~ ¥12,100
Tiền đặt cọc / Người bảo lãnh Tùy thuộc vào điều kiện hợp đồng và kết quả xét duyệt, cũng có trường hợp yêu cầu tiền đặt cọc và người bảo lãnh. Phí hủy hợp đồng ngắn hạn Hủy dưới 1 năm bồi thường 3 tháng tiền nhà, hủy trên 1 năm dưới 2 năm bồi thường 2 tháng tiền nhà.
Hợp đồng pháp nhân Trường hợp hợp đồng pháp nhân, do điều kiện hợp đồng như giá thuê,... sẽ khác nhau nên quý khách vui lòng liên hệ với chúng tôi.
Hệ thống giao thông
  • Fukuzumi Station - Sapporo Municipal Subway Toho Line 0.1~0.3 km, 2.0~5.0 phút đi bộ
  • Tsukisamu-Chūo Station - Sapporo Municipal Subway Toho Line 1.3~1.5 km, 17.0~19.0 phút đi bộ
  • Nango Nanachome Station - Sapporo Municipal Subway Tozai Line 2.8~3.0 km, 35.0~38.0 phút đi bộ

*Bạn có thể tìm kiếm bằng cách nhấp vào (kiểm tra) dấu cơ sở bạn muốn hiển thị trên bản đồ. (Có thể chọn nhiều)

Thêm vào mục yêu thích
Gọi điện Gọi cho Chúng tôi 0120-266-078
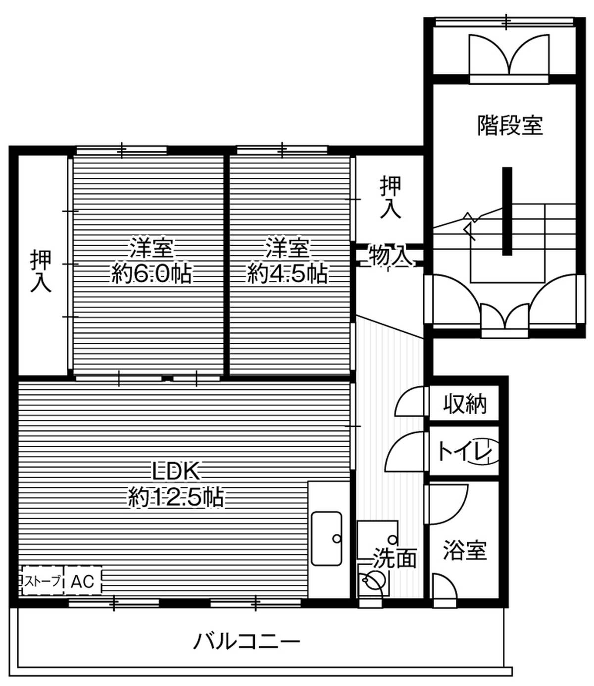
Thông tin phòng theo sơ đồ.
2LDK Diện tích: 53.21m²~
Giá thuê: ¥ - Không còn phòng nào trống

*Chi tiết phòng sẽ được hiển thị ngay khi có phòng.

3DK Diện tích: 53.21m²~
Giá thuê: ¥ - Không còn phòng nào trống

*Chi tiết phòng sẽ được hiển thị ngay khi có phòng.

Gọi điện Gọi cho Chúng tôi 0120-266-078
Thông tin công ty
Tên công ty Công ty Cổ phần Village House Management
Địa chỉ Tầng 44, tòa nhà Roppongi Hills Mori Tower, 6-10-1 Roppongi, Minato-ku, Tokyo
Số giấy phép Thống đốc Tokyo (2) số 100758
Tổ chức trực thuộc Hiệp hội giao dịch bất động sản Tokyo vì lợi ích công cộng / Hiệp hội quản lý nhà ở cho thuê Nhật Bản vì lợi ích công cộng
Hình thức giao dịch Chủ thuê
Căn hộ gần đó
Ngoại thất của Village House Fukuzumi ở Toyohira-ku
Fukuzumi
Hokkaido, Sapporo-shi, Toyohira-ku, Fukuzumi02Jo 7-3-3

1LDK / 34.34m² / ¥41,200 〜

2K / 34.34m² / (Không còn phòng nào trống)

Thông tin chi tiết
Ngoại thất của Village House Sakuradai Tower ở Atsubetsu-ku
Sakuradai Tower
Hokkaido, Sapporo-shi, Atsubetsu-ku, Atsubetsunishi04Jo 1-7

2LDK / 60.78m² / ¥68,400 〜

1LDK / 60.78m² / (Không còn phòng nào trống)

3DK / 60.78m² / (Không còn phòng nào trống)

Thông tin chi tiết
Ngoại thất của Village House Kami Nopporo ở Atsubetsu-ku
Kami Nopporo
Hokkaido, Sapporo-shi, Atsubetsu-ku, Kaminopporo01Jo 2-3

2LDK / 55.99m² / (Không còn phòng nào trống)

3DK / 55.99m² / (Không còn phòng nào trống)

Thông tin chi tiết
Ngoại thất của Village House Kawazoe ở Minami-ku
Kawazoe
Hokkaido, Sapporo-shi, Minami-ku, Kawazoe16Jo 1

2LDK / 53.21m² / (Không còn phòng nào trống)

3DK / 53.21m² / (Không còn phòng nào trống)

Thông tin chi tiết
Ngoại thất của Village House Satsunae ở Higashi-ku
Satsunae
Hokkaido, Sapporo-shi, Higashi-ku, Higashinaebo11Jo 2-6-1

2LDK / 55.99m² / ¥52,100 〜

3DK / 55.99m² / ¥54,200 〜

Thông tin chi tiết
Toàn cảnh 360 độ

Liên hệ qua điện thoại

0120-266-078

Hiện tại đang ngoài giờ làm việc, chúng tôi không thể giải đáp thắc mắc qua điện thoại.
Quý khách vui lòng liên hệ với chúng tôi qua email hoặc gọi điện vào ngày làm việc tiếp theo.

Ngoại thất của Village House Higashi Tsukisamu ở Toyohira-ku
Thêm vào mục yêu thích

Village House Higashi Tsukisamu

Hokkaido, Sapporo-shi, Toyohira-ku, Tsukisamuhigashi01Jo 13-4
Bãi đỗ xe trống:
Chọn phòng muốn xem: Bắt buộc
Chọn phòng muốn xem: (Bắt buộc)
    Ngày xem phòng: 即時

    ※Thời gian xem phòng khoảng 30 phút.
    ※Trường hợp quý khách có nguyện vọng xem phòng gấp, vui lòng liên hệ qua số điện thoại.

    Ngày và giờ xem phòng (nguyện vọng 1) Bắt buộc

    Ngày:
    Giờ:

    Ngày và giờ xem phòng (nguyện vọng 2) Bắt buộc

    Ngày:
    Giờ:

    Ngày và giờ xem phòng (nguyện vọng 3)

    Ngày:
    Giờ:

    Họ và tên: Bắt buộc

    Số điện thoại: Bắt buộc

    Địa chỉ email: Bắt buộc

    Địa chỉ email (nhập lại email): Bắt buộc

    Phương tiện đi xem phòng? Bắt buộc

    Yêu cầu khác:

    Quý khách hoặc người cùng đi xem phòngcó thể nói tiếng Nhật không? Bắt buộc

    ※Tiếp nhận lịch xem phòng tạm thời.

    Gọi điện Gọi cho Chúng tôi 0120-266-078
    Khu vực